Paris 16 – Ranelagh – La Muette – 6ème étage – 3 pièces – 2 chambres – 101 m2

01.01.1970
922
Surface : 101
Pièces : 3 pièces
Étage : 6
1.450.000
À vendre
ID : GR3-1282C
Caractéristiques
Property bedroom icon Chambres : 3
Property bathroom icon Salles de bain : 1
Property size icon Surface : 101 m²
Property floor icon Étage : 6
Property total floors icon Étages total : 9
Property year built icon Construction : 1960
Property heating icon Chauffage : Gaz
Property accommodation icon Type : Non meublé
Property ceiling height icon Hauteur sous plafond :
Property parking icon Parking : 1
Property distance from center icon Centre-ville :
Property publication date Date de publication : Novembre 2025
Property area size icon Surface totale : 101 m²
Property garages icon Garages :
Property garages size icon Surface garages :
Property additional space icon Surface supplémentaire :
Les plus
Balcon
Buanderie
Bureau
Cave
Cellier
Chambre de service
Dependance
Dressing
Gardien
Grenier
Hammam
Jardin
Mezzanine
Piscine
Placard
Sauna
Terrasse
Veranda
Location
Full Address:
Simple Address:
ZIP Code: 75016
Country: FR
Description

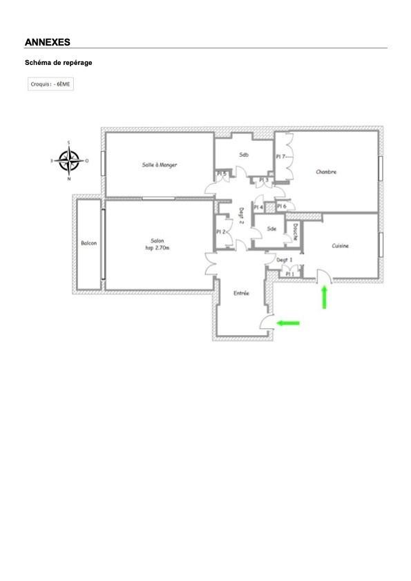
Dans une rue résidentielle située entre la rue du Ranelagh et la Muette, au 6ème étage d’un bel immeuble moderne bien sécurisé et bien entretenu, un appartement traversant de 3 pièces comprenant : une entrée, un salon ouvrant sur un balcon plein Est, une salle à manger, une grande chambre de 18 m2 donnant sur un jardin, plein Sud, avec une jolie vue dégagée, au calme absolu, une cuisine équipée, une salle de bains avec wc, une salle d’eau avec wc et de nombreux placards. Une cave – Un grand box possible au prix de 85 000 € en sus. Appartement en très bon état – Plan modulable en deux chambres.
Nombre lots : 58 lots
DPE : D
Montant estimé des dépenses annuelles d’énergie pour un usage standard : entre 1 180 € et 1 650 €.
Agent commercial : Véronique Giraut – E.I. 503 883 191 RSAC Paris

MENTIONS OBLIGATOIRES
Prix hors honoraires
1 450 000 €
Montant des honoraires agence TTC à la charge de l’acquéreur
Montant des charges annuelles TTC de la copropriété
5 508 €
Procédure en cours
NON
Virtual Tour
Property Tags
0 Reviews
You don't have permission to register
Request a showing